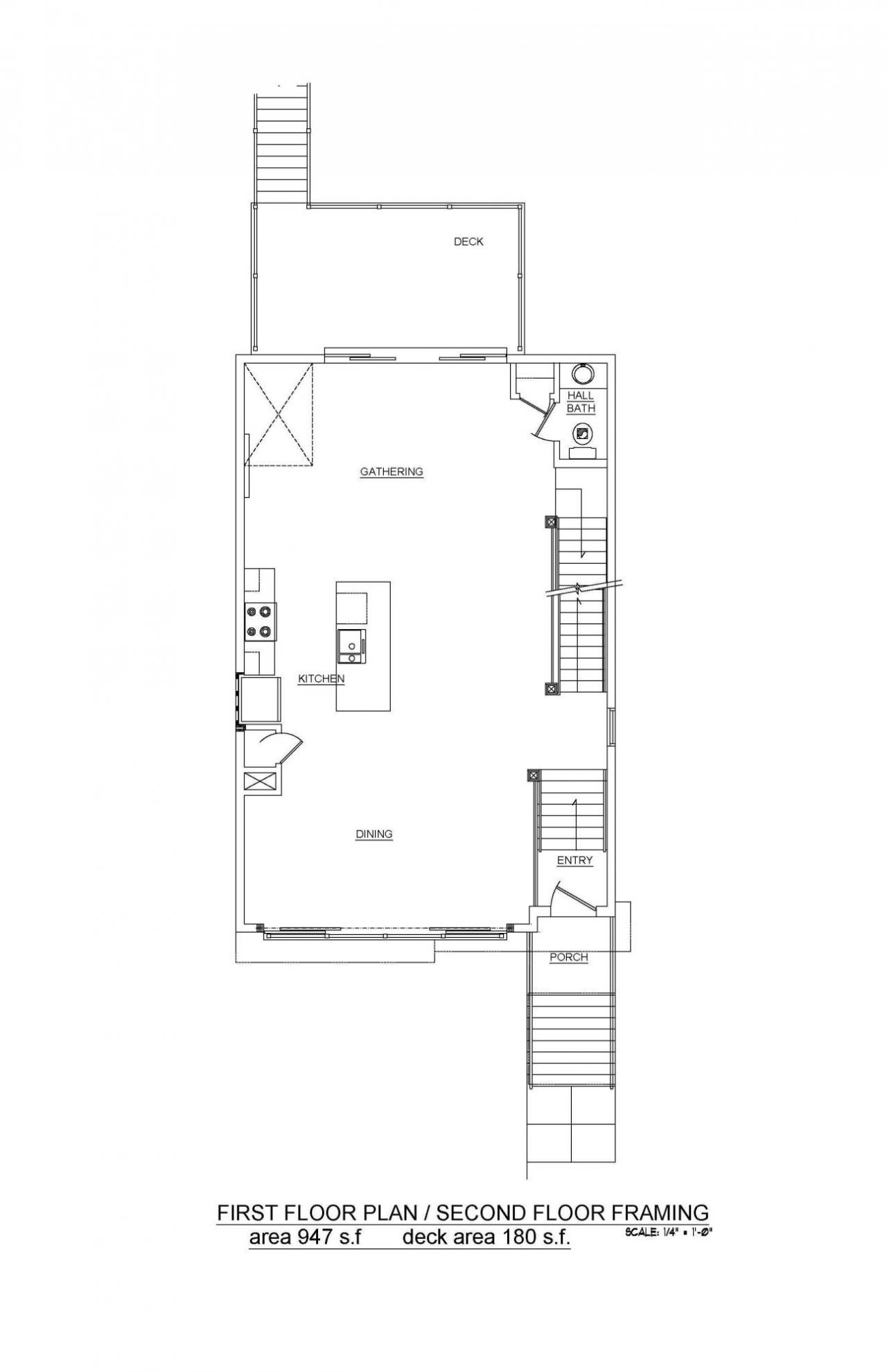
NEW CONSTRUCTION Aydan model with multiple levels of outdoor living and amazing seasonal city skyline views! This ReaLife Homes 3 story, 3 bedroom, 2 car garage model features the following: Contemporary interior and exterior finishes, 9 foot ceilings, open great room/ kitchen/ dining area with full wall glass door opening to the pond and waterfall in the rear yard, covered rooftop deck with direct bedroom access, granite countertops, specialty lighting, luxury tile and vinyl plank flooring, and MORE! Come experience one of a kind urban living in the completely new development of Reserve at Bellevue, a Northern Kentucky Homefest site. ...read more
Estimated Payment
$ 3,235.70 per month $3,040.58 Principal & Interest $0.00 Property Tax (data not provided by mls) $195.13 Homeowner's InsuranceListed By
Agency Name: Tree Ridge Realty, LLC
Agency Phone: 513-315-9200
Shown By
Agent Name: Chad Adams
Agent Phone: (937) 344-4380
Agency Title: Comey & Shepherd