NEXT BACK Refine Search

305 N Mechanic Street, Unit 7, Lebanon, OH 45036

$569,000
  • Main Photo
  • Main Photo
  • Main Photo

3 Total Photos [Click to View All]

Call TEXT TO ME Look Around Map Listing Print Share Email
Status - Active
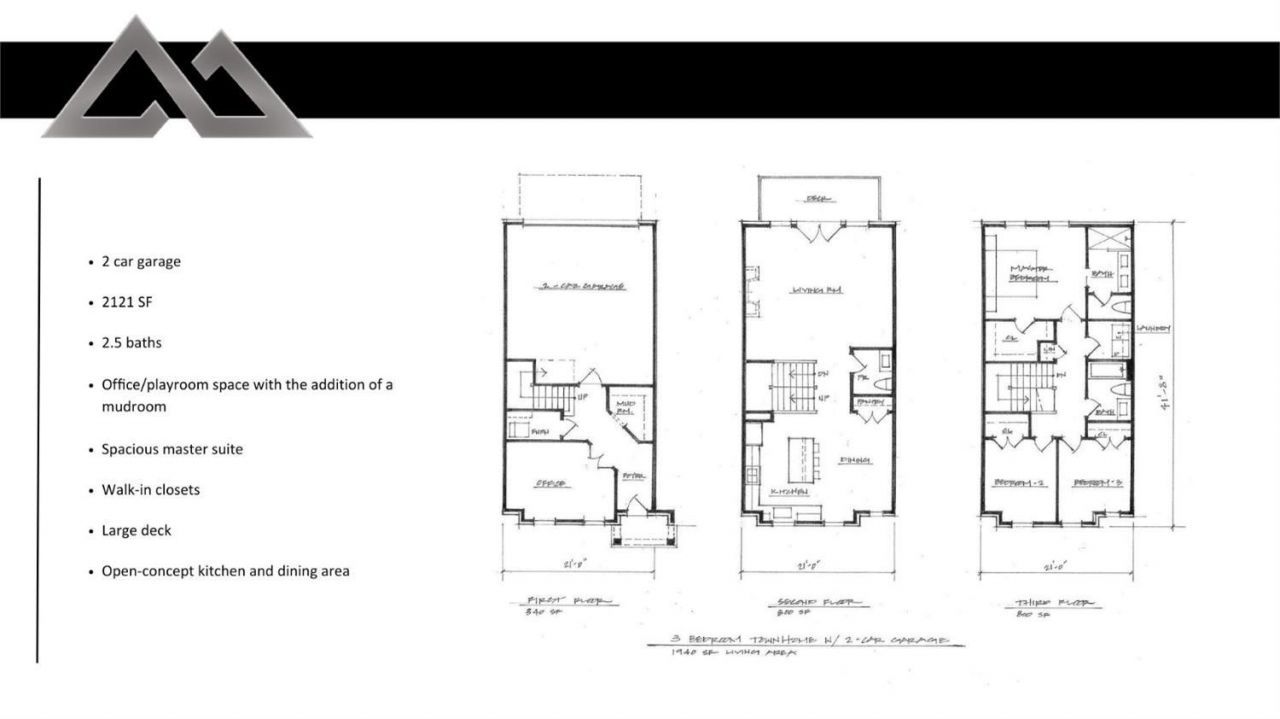
3BEDS 2 full 1 partialBATHS 2,121SQUARE FEET 1864598MLS# LebanonSCHOOL

Home Value Estimate


Description

Welcome to Lebanon Landing Townhomes by Justin Doyle Homes, a new, walkable townhome community in Lebanon, Ohio. This 3-bed, 2.5-bath townhome offers approx. 2,121 SF, a 2-car garage and 3 finished levels with private direct entry on level one. The main living level features luxury vinyl plank flooring in the living area and office, an open kitchen with quartz countertops and island, appliances included, dedicated dining area, and a powder room. A balcony/deck off the great room extends the living space. The upper level includes carpeted bedrooms and stairs, a primary suite with walk-in closet, 2 additional bedrooms, full bath, and in-unit...read more

Features

  • Dishwasher
  • Garbage Disposal
  • Microwave
  • Oven/Range
  • Refrigerator
  • Central Air
  • Electric, Forced Air
  • 3.0 Stories
  • $0 Taxes
  • Public

Login to My Homefinder

Pixel